АВТОМАТИЗИРОВАННАЯ БЕСКОНТАКТНАЯ

"ПРОФИЛЬ-Л"


   Автоматизированная бесконтактная установка измерения параметров колесных пар локомотивов предназначена для контроля основных размеров колесных пар при проведении ремонтов в условиях депо и ремонтных заводов ОАО РЖД.

   Контролируемые параметры:

   - Бандажи, ободья цельнокатаных колес
   - Толщина гребня
   - Толщина обода
   - Диаметр бандажа или обода
   - Разность диаметров правого и левого бандажей, измеряемых по кругу катания, у одной колесной пары
   - Непостоянство диаметра в поперечном сечении бандажа по кругу катания (после обточки)
   - Радиальное биение обода относительно центра оси
   - Равномерный прокат
   - Отклонение ширины обода от номинального размера колесных пар
   - Неравномерный прокат на поверхности катания
   - Расстояние между внутренними гранями бандажей или ободьев цельнокатаных колес
   - Разность расстояний между внутренними гранями бандажей или ободьев цельнокатаных колес у одной колесной пары

     - Дефекты на поверхности катания (ползуны, выщерблины)
     - Оси
     - Диаметр шейки оси
     - Радиальное биение шейки оси
     - Зубчатые колёса
     - Уменьшение толщины зуба зубчатого колеса от номинального размера
     - Уменьшение высоты головки зуба
     - Разность толщины зубьев зубчатых колес одной колесной пары
      - Увеличение расстояния между внутренними гранями (торцами) ступиц колесного центра и зубчатого колеса колесной пары
 

   Параметр, ед. измерения Значение
   1. Производительность, компл / час 8
   2. Цикл работы Автоматический
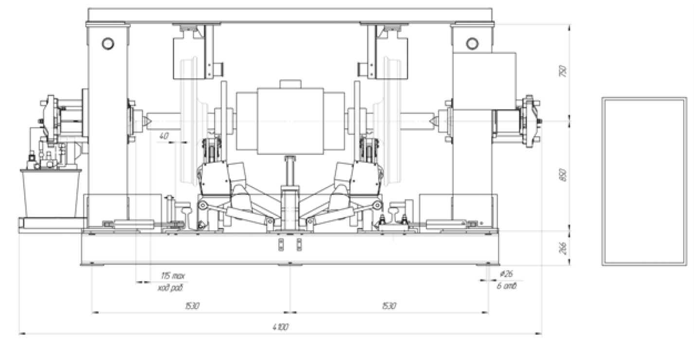
   3. Габаритные размеры (длина, ширина, высота, мм) 4100х1300х2300
   4. Масса, кг
2600
   5. Потребляемая 4500
   6. Количество одновременно контролируемых параметров   300
   7. Способ контроля Оптические лазерные бесконтактные датчики триангуляционного принципа измерения


  загрузить в хорошем качестве                                назад